Monolocale in affitto

Roma, Via Poggi D'Oro - Appia Nuova Santa Maria Ausiliatrice
€ 600 / mese
1 locale 1 locale
13 Mq 13 Mq
1 bagno 1 bagno

Monolocale in affitto

Roma, Via Poggi D'Oro - Appia Nuova Santa Maria Ausiliatrice

Descrizione annuncio

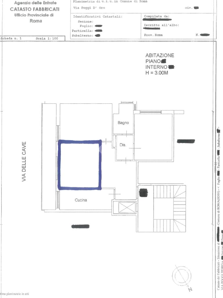
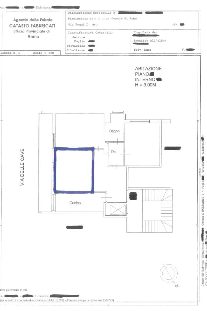
Via Poggi D’Oro – Inizio locazione dal 01-05-2026, con contratto di 18 mesi.

Proponiamo in locazione una camera di 13 mq catastali, arredata e climatizzata, identificabile in planimetria con il colore blu - per studenti con genitori garanti o lavoratori con contratto di lavoro a tempo determinato, non fumatori e senza animali.

La stanza in questione, verrà realizzata chiudendo una parte dell'attuale soggiorno.

Gli ambienti che resteranno comuni alla locazione sono l’ingresso, la cucina abitabile, il bagno finestrato, il ripostiglio ed il balcone.

L’appartamento, attualmente oggetto di lavori di ammodernamento, si colloca al quarto piano di un palazzo di sei ed è dotato di doppia esposizione angolare, riscaldamento centralizzato, infissi con doppio vetro ed un comodo balcone.

Al canone di locazione mensile, vanno addizionati i costi di: condominio, riscaldamento, utenze e nettezza urbana.

Posizione Strategica: Situato in una zona residenziale tranquilla, ma vicino a tutti i servizi di prima necessità della zona, quali: negozi, ristoranti, scuole e mezzi di trasporto come ad esempio la fermata della metro A di Colli Albani e la Stazione Ferroviaria di Roma Tuscolana.

Mostra tutto

Nelle vicinanze

Trasporto pubblico Trasporto pubblico
Colli Albani
Colli Albani
220 m
Furio Camillo
Furio Camillo
670 m
stazione di Roma Tuscolana
stazione di Roma Tuscolana
1,0 Km
Alessi
Alessi
1,3 Km
Alessi
Alessi
1,3 Km
Ricariche auto elettriche Ricariche auto elettriche
Roma Appia | EnelX
490 m
Roma Ponte Lungo | EnelX
1,2 Km
Eneldrive Magnagrecia
2,2 Km
Bici & Motori
2,7 Km
Best Western Hotel President
2,8 Km
Scuole Scuole
Scuola Media Statale Albio Tibullo
190 m
Istituto Comprensivo Largo Volumnia - Plesso G. Cagliero
270 m
Scuola elementare Villa Lazzaroni
420 m
Ada Negri - Succursale
510 m
Scuola Elementare Pubblica Ada Negri - Succursale
520 m
Farmacia Farmacia
Farmacia Colli Albani
210 m
Cantú
230 m
Giancotti
270 m
Farmacia Zelli
340 m
Farmacap
370 m
Ospedali Ospedali
A.S.L. Roma C
700 m
NCL
1,1 Km
Istituto delle Figlie di San Camillo - Ospedale M. G. Vannini
1,6 Km
Pronto Soccorso Ospedale "Madre G. Vannini"
1,6 Km
Nuova Clinica Annunziatella
2,6 Km
Supermercati Supermercati
Sma
120 m
Todis
150 m
Fresco Market
190 m
Dem
190 m
Margherita
430 m
Negozi Negozi
Lovable
180 m
Trilly & Peter
230 m
Negozi
270 m
Surgelati
280 m
Casa de la Camicia
320 m
Bar Bar
Bar
860 m
Enoteca bonomi wine bar
1,0 Km
Arca Dancing
1,2 Km
28DiVino Jazz
1,3 Km
Bar Tong
1,3 Km
Ristoranti Ristoranti
Chiyo
20 m
Allegria
70 m
Il Capriolo
120 m
Sapori di Principe
130 m
Ristoranti
180 m
Mostra tutto

Caratteristiche

Rif.:
61193119
Piano:
4 di 6 con ascensore (Piano medio)
Balconi:
1
Camere da letto:
1
Arredamento:
Completo
Condizionamento:
Autonomo
Mostra tutto
Prezzo Prezzo
€ 600 / mese
Spese annue Spese annue
€ 900

Classe Energetica

G
G
G
G
G
G
G
G
G
EP globale non rinnovabile:
175.00 kW h/m² anno
EP globale rinnovabile:
175.00 kW h/m² anno
EP invernale del fabbricato:
EP estiva del fabbricato:
Riscaldamento:
Centralizzato
Tipo impianto:
A radiatori
Tipo alimentazione:
Metano

Ti interessa visionare l'immobile?

Fissa un appuntamento  Fissa un appuntamento

Richiedi informazioni

Clicca su Leggi per aprire l'informativa
* Questi campi sono obbligatori
Affiliato
Bps Group Srl
Via Santa Maria Ausiliatrice, 12 00181 Roma (RM)
Via Santa Maria Ausiliatrice, 12 00181 Roma (RM)
Zona: Appia Nuova-Santa Maria Ausiliatrice
Mostra su mappa
Orari: lunedì - venerdì 9:00 - 13:00 e 15:30 - 20:00; sabato 9:00 - 13:00
Affiliato
Bps Group Srl
Via Santa Maria Ausiliatrice, 12 00181 Roma (RM)

2026 Tecnocasa Franchising S.p.A. - P. IVA 08365160152 - Via Monte Bianco 60/A 20089 Rozzano (MI). Ogni agenzia ha un proprio titolare ed è autonoma. Privacy policy | Policy utilizzo | Cookie policy